MARISOL’S HOME
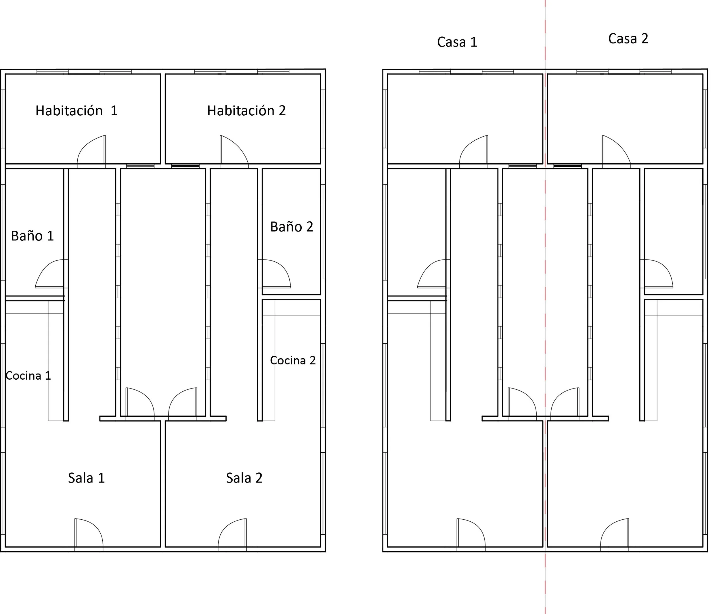
Marisol’s home cultivates a transformative sanctuary where she can thrive with safety and grow .
Marisol’s home cultivates a transformative sanctuary where she can thrive with safety and grow .